消费升级推动的不仅仅是产品与服务的进阶
对颜值形象的审美提高
会让消费者直接对品牌建立好感度
这也是华洲给合作商提供建店设计的意义
保持形象与功能的同时
提高产品与服务的质量
才能紧抓消费者的内心
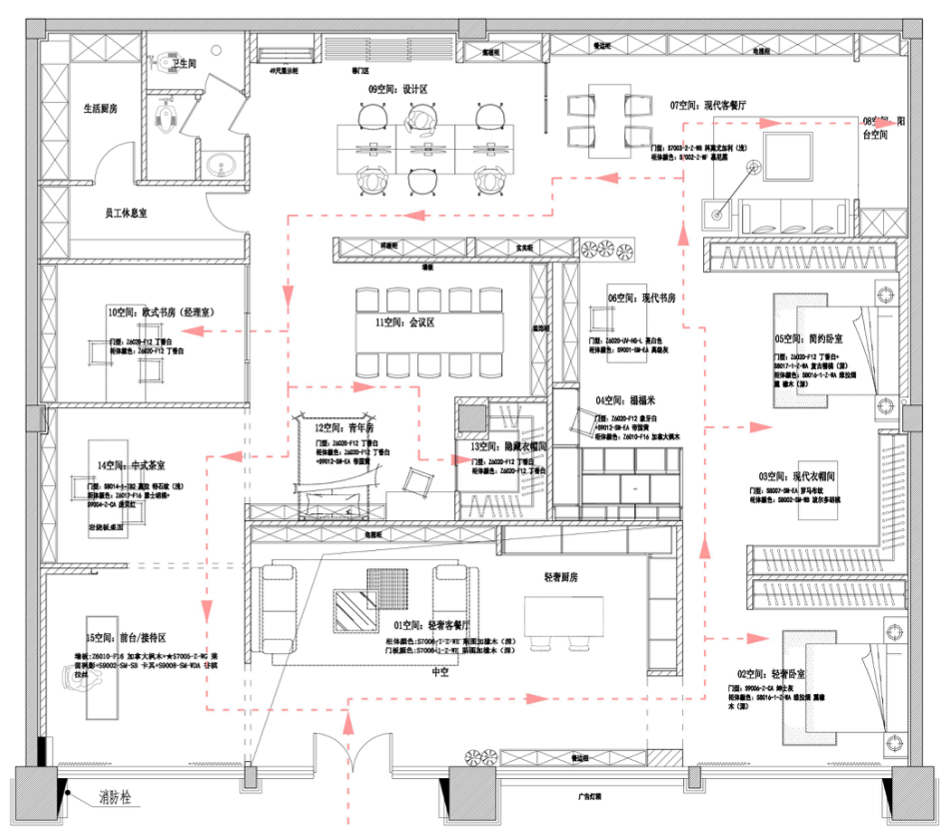
本期案例欣赏

这个门店拥有266㎡ 的设计面积
合作商希望能够充分利用好每一寸
最大化地展示出更多的情景空间
华洲设计师在与合作商进行详细的沟通后
决定以“回”字型动线的设计方式来布局
回字型动线不仅脉络清晰
保证回路、避免死角
还能有序地引导顾客尽可能地
经过更多的区域,看到更多产品
在整体风格上,除了以“现代轻奢”为主线以外
也尽可能地加入更多的主流风格情景间
为客户提供更多时尚多样化的选择

卧室对于空间的诉求宗旨即是舒适与简单,追求纯粹质感的高级灰与低调沉稳的斯图加特橡木/维拉烟熏橡木完美地体现了这一点,没有繁复的装饰,却反而给人带来意想不到高品质的优雅魅力。

衣帽间是现代追求时尚和品质的必需品之一,它不仅是衣物储存的定义,更装载了关于美丽、时尚和生活的态度,只要空间足够,大部分家庭都希望拥有一间衣帽间来满足自己的需求。
银灰色泽的罗马布纹编织的纹理拥有与生俱来的立体感,在爱马仕橙与金属元素的点缀下,更兼具现代艺术的美感,轻奢玻璃材质质感透明,折射出来的光芒可以让大空间更大气、小空间更宽敞通透,还能带来优雅、精致的感觉。




现代客餐厅因其简单与时尚元素的设计,备受年轻一族的喜爱,在家居设计风格上,可以达到让居室实用而又有风格的效果。
简洁明快是现代风格客餐厅的主调,设计上追求线条的简约与直接。电视柜采用开放与封闭式的多格局设计,在视觉上缓解了全封闭式柜体的沉重压抑。开放式的格子用于展示、封闭式的柜体则收藏杂乱的大小件物品,让客厅时刻保持着美观性与整洁度。花色以慕尼黑与科莫尤加利搭配,营造出了丰富的层次感,让人感受到豁然的大气与闲适。


欧式给人的感觉一如高贵,这也是不少追求高品质生活都市人的选择,在欧式书房的设计上,设计师简化了传统欧式过多繁复的装饰,以简约的线条和丁香白花色带出欧式的端庄典雅、高贵华丽,并且不失书房该有的浓厚的文化气息。

青年人富有活力与激情,喜欢直接了当,对空间的诉求也是如此。丁香白的颜色更直接,搭配木纹花色可以营造舒适干净的空间氛围,帝国黄的颜色更具活力,两者结合将青年的个性更好的诠释。

中式传统元素始终是书房空间青睐的对象,它不仅拥有中式的美感,更传承了千年的文化内涵。中式书房的设计采用了石纹与木纹的结合与碰撞,兼容了自然与质感的融合,庞贝红的植入更充斥了满满的中式鲜活感,传统的软装与装饰选择,更显韵味与时尚。

互联网让前沿的时尚讯息
可以快速触达全国各地的消费者
因此,想要获得她们的青睐
就要从好的形象开始
中国广东省广州市番禺区南村镇樟边村岗平3号
中国广东省韶关市始兴县沙水产业转移工业园
中国广东省韶关市始兴县沙水产业转移工业园
关注微信公众号
关注微信小程序
Copyright © 2020 - 2021 广州华坊洲木业有限公司
