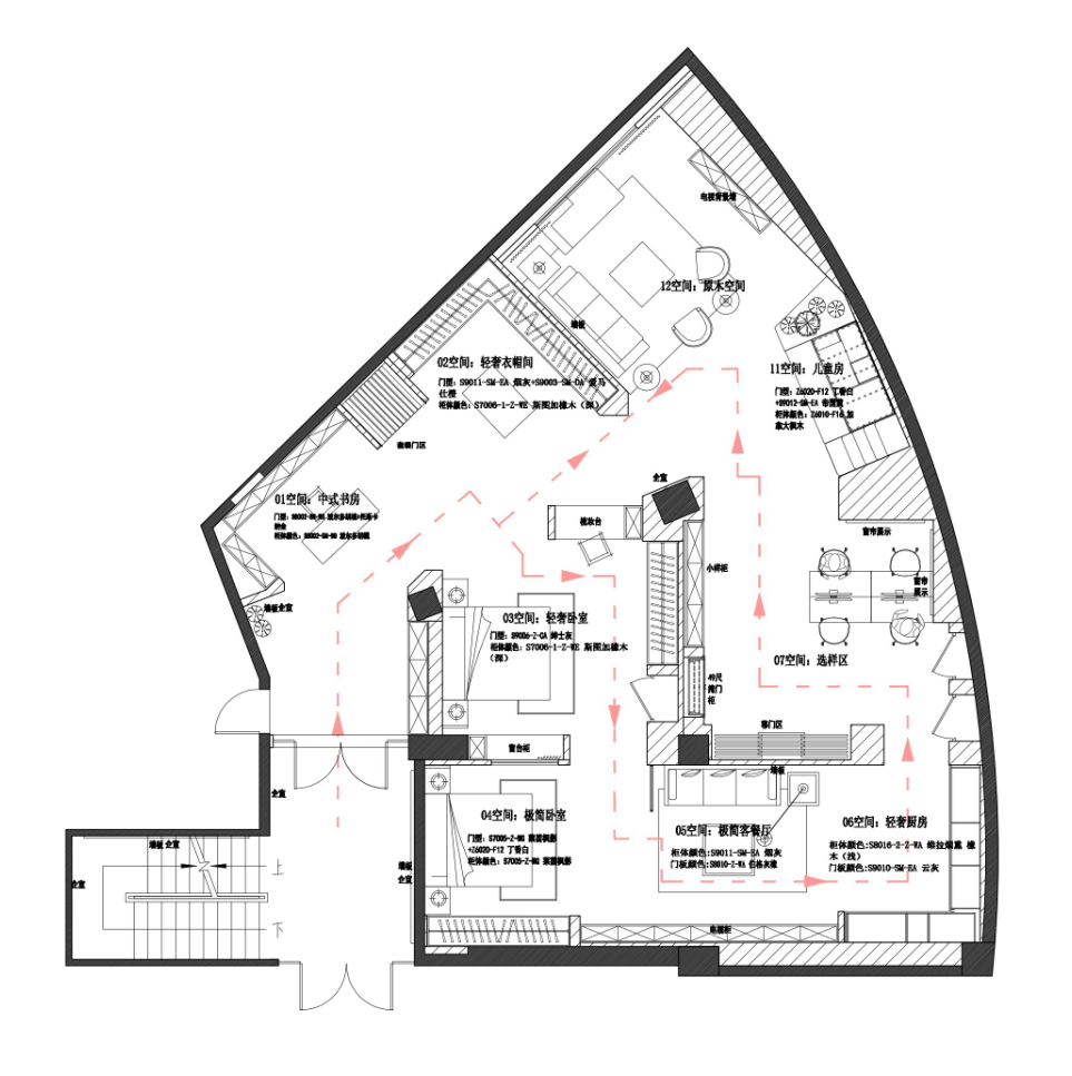
本此合作商展厅案例分享,为大家带来的是华洲湖南娄底战略合作商167㎡的展厅建店设计。

此次的展厅的面积为167㎡,给予了设计师较大的设计空间,但由于展厅空间是不规整的扇形格局,复杂的几何形状也对设计师的布局能力造成了不小的挑战。
合作商希望展厅在兼具产品展示、招待办公的同时,把更大的设计重心放在了情景空间的展示上,将产品与设计完美结合,让消费者拥有更直观真实的感受与体验。
书房是家中自我沉淀、培养气质的重要所在。木纹作为中式书房的的重要组成,既显古韵,又显雅致。
这里使用的是波尔多胡桃作为主体花色,棕灰色的主调是中式书房的最爱,花色自有的丰满山纹更显层次,搭配托斯卡纳金的奇妙纹理,更显典雅与文化内涵。镂空的中式门窗屏风、古朴的书架案台,不刻板,不张扬,独守内心的自在与悠然。

入户空间考量的是实用性与美观性的结合,干净整洁的外观,便携多功能的收纳储物都是它的基本操作,当然它也要具备与整体空间风格相符的气质。
现代风格的入户空间以白色作为主体花色,突出整洁明亮的氛围,搭配层次丰富的维拉烟熏橡木更显时尚与细腻,代尔夫特蓝的植入更为空间注入了鲜活的生命力。灵动且活泼。

轻奢即为轻度奢侈,追求的是空间设计的简约与精致。轻奢衣帽间大胆的使用了烟灰作为主色调,简约而雅致,与斯图加橡木相互搭配非常适合打造高级雅致的空间氛围。
这与衣帽间的格调不谋而合,特别是搭配爱马仕橙之后,更是一种低调的凸出,让空间的高级感与时尚感倍增。而为增加衣帽间的实用性,中岛台的设计,大大增加了小物件的储物能力,使得空间干净整洁,从细节也流露出精致。

保持了轻奢风格卧室一贯的精致与和谐,线条与花色纹理的搭配组合,既有简约的精细勾勒,又包含花色自然流露的艺术美感。
花色使用的是斯图加橡木与高级灰的中性搭配,不突出、不强势,让人拥有舒适的和谐感,搭配与之色彩相近的软装与柔和灯光,注定将会拥有完美的睡眠体验。


极简风格的卧室空间,追求极致的简约,没有多余繁杂的装饰,利用花色自身构建空间的艺术美感,满足人们最简单的功能诉求,一件实用的收纳柜、一个舒适助眠的大床。

极简是一种让家居生活简单化呈现的艺术风格。作为家庭休闲放松、沟通娱乐的地方,极简客厅也将其简约个性的特质与其功能性更大化的融合。
除了沙发区的休闲领域,客厅柜收纳也是其重要的功能之一,设计上采用云灰与伯格灰橡搭配,当细腻的纹理遇见高级的中性色调,碰撞出了精致时尚的空间风格,氛围的营造上也偏向温和美好。

轻奢风格的厨房空间采用了小户型最合适的L型橱柜设计,保证了足够收纳空间的同时,也让活动及使用空间更大程度的释放。
而即便是每天与茶米油盐打交道的厨房,轻奢厨房依然保持了它的简约与精致的美感,采用云灰与维拉烟熏橡木相搭配,前者精致高级,后者自然流畅,共同营造了温暖精致的厨房空间,果然厨房是生产美食与爱的地方。

儿童房充满了孩子们的天真与想象,即便是小户型的儿童房,也要拥有全面的功能来满足孩子们的小诉求。楼梯处的收纳空间是亮点,可以分类收纳孩子们的衣服、玩具和书籍等,同时保障了孩子们的活动空间。
设计上选用了加拿大枫木与丁香白这组黄金搭档,使得空间既显明亮,又纯净自然,一抹帝国黄的跳跃,更丰富了空间色彩,让人耳目一新,充满活力。

中国广东省广州市番禺区南村镇樟边村岗平3号
中国广东省韶关市始兴县沙水产业转移工业园
中国广东省韶关市始兴县沙水产业转移工业园
关注微信公众号
关注微信小程序
Copyright © 2020 - 2021 广州华坊洲木业有限公司
