华洲木业︱湖南浏阳战略合作商 240㎡ 展厅空间设计案例

2021-07-13 16:37:50    阅读:
管理员


被喜欢的前提是让人拥有独特的记忆点。


通常在展厅设计中,我们可能为了更多产品的呈现,而忘了留白的艺术,使得空间密集且压抑。相反,简约的空间设计则可以赋予消费者更多的想象与内涵,而有时看似简单的设计却能让人拥有舒适与放松的感觉,且记忆犹新。

此次合作商展厅案例分享,为大家带来的是华洲湖南浏阳战略合作商的展厅设计。

华洲木业︱湖南浏阳战略合作商 240㎡ 展厅空间设计案例(图1)


设计思路
DESIGN IDEAS




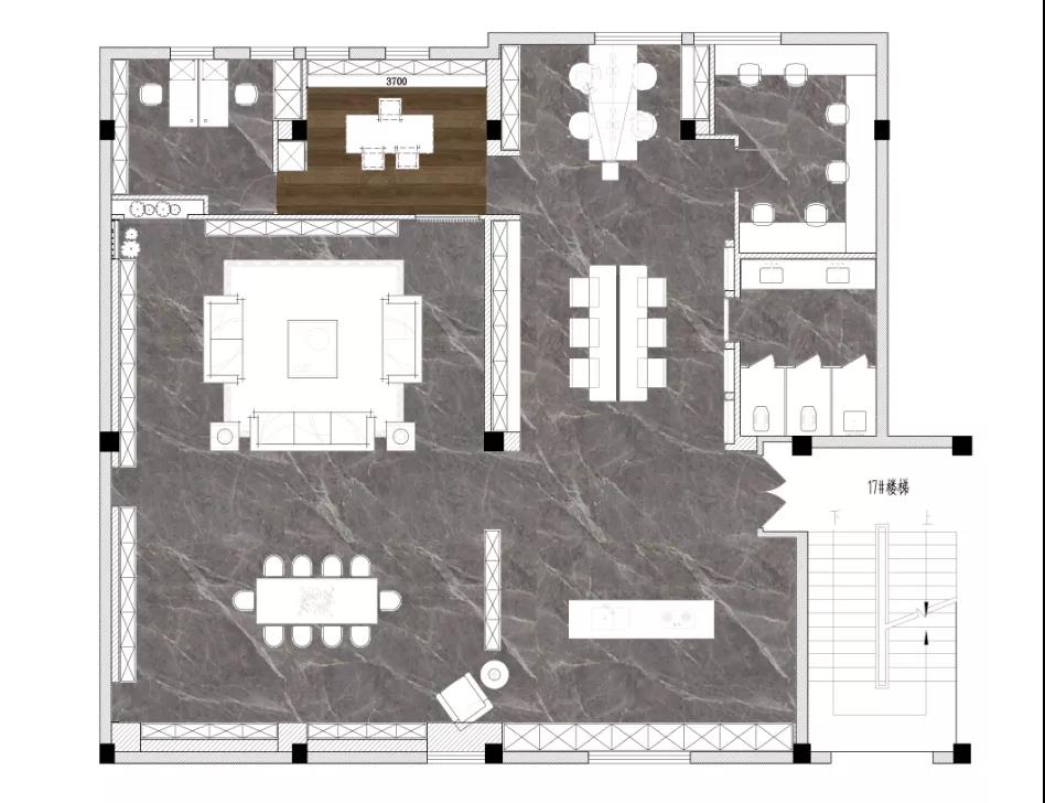
此次展厅的面积为240㎡,较大的面积非常考验设计师的空间布局能力,既要合理的设计每一处角落,又要有主有次、和谐统一,让消费者能够拥有明显的记忆点,从而获得他们的好感和青睐。

合作商希望将展厅设计得大气和简约,在呈现现代、轻奢、新中式风格的同时给予消费者更自由地想象。而且合作商还希望规划一个较大的区域作为设计区,让整个展厅具有情景空间展示、设计洽谈及办公等诸多职能



华洲木业︱湖南浏阳战略合作商 240㎡ 展厅空间设计案例(图2)

设计师考虑到展厅空间拥有较大的面积,则利用设计留白,让空间拥有 聚焦点和想象氛围 因此选择了客餐厅空间、厨房空间、书房空间作为本次设计的重点情景展示空间,其中,轻奢客餐厅1:1的还原家居实景,让消费者更能拥有身临其境的代入感。

同时为了让消费者拥有流畅的观赏体验,整体动线采用了 回路设计,可以避免较大空间给参观者带来的单调感,又能让消费者对每一处设计都有自己独特的想象与记忆。

而花色选择上设计师不仅使用了高级灰、卡其、斯图加橡木等热销花色,还选用了华洲新推出的法拉贝拉、托斯卡纳金、豆沙粉等前沿的时尚花色,给消费者带来更时尚的设计形式,浏览其中既能感受到家的舒适,又能体验到别样的艺术美感,让自己对家的样子也充满了美好的想象。


空间展示
SPACE DESIGN




1

现代厨房展示区域


现代风格的厨房非常受当下消费者青睐,形式简洁、功能实用,时尚且大气。一切从实用角度出发,无需多余的附加装饰,这也是最质朴的生活哲学。

设计师在这里选用了开放式的厨房设计,中岛台面成为了烹饪美食完美之所,既可以保持与客厅空间的互动,营造一个温馨浪漫的烹饪氛围,又能有一个明显的隔断,分割空间。

华洲木业︱湖南浏阳战略合作商 240㎡ 展厅空间设计案例(图3)

Design and color
① 柜体:S8017-1-Z-WA 复古樱桃(深)
② 柜门:S9014-SM-EA 代尔夫特蓝
③ 柜体/柜门:S9011-SM-EA 烟灰



花色的选择上,设计师使用了烟灰作为柜体主花色,时尚简约的同时,又让人感受到温暖的氛围,而代尔夫特蓝让空间充满活跃的生命力,在茶米油盐间,也能体会多彩的生活。

华洲木业︱湖南浏阳战略合作商 240㎡ 展厅空间设计案例(图4)

Design and color
① 墙板:S9010-SM-EA 云灰
② 墙板:S7010-SM-EA 托斯卡纳金




2

轻奢客餐厅展示区域


轻奢风格客餐厅的空间设计占据了整个展厅最大的比重,主要是为了做到真实的还原,能给消费者带来最真切直观的体验与代入感。

设计师通过对布局、花色、软装、灯光的搭配与运用,使空间拥有了简约精致的空间特质,彰显高质的品味生活。

华洲木业︱湖南浏阳战略合作商 240㎡ 展厅空间设计案例(图5)

Design and color
① 柜体:S9001-SM-EA 高级灰
② 柜体:S9015-SM-EA 豆沙粉
③ 柜体/柜门:S7005-Z-WG 莱茵枫影
④ 墙板:S9002-SM-SB 卡其



一眼望去,整个客厅空间就给人一种精致的艺术气息,中性偏暖色调编制的时尚感仿佛跳跃在空间的每一处细节,特别是一面巨大的到顶装饰柜,大气而震撼,开放式与掩门式的结合,也满足了陈列与收纳的双重诉求。

华洲木业︱湖南浏阳战略合作商 240㎡ 展厅空间设计案例(图6)

Design and color
① 柜体:S9001-SM-EA 高级灰
② 墙板:S9002-SM-SB 卡其



相比之下,餐厅空间在精致的同时又多了一份层次感,让人感觉更为舒适与轻松,托斯卡纳金与幻影黑的对比并不冲突,甚至更有意境的融入;代尔夫特蓝与卡其搭配,更突显异域的高贵气质;玻璃与金属元素在柔和的灯光下,又显精致,又折射出舒适的温馨氛围。

华洲木业︱湖南浏阳战略合作商 240㎡ 展厅空间设计案例(图7)

Design and color
① 柜体:S9001-SM-EA 高级灰
② 墙板:S9002-SM-SB 卡其
③ 柜体:S8010-Z-WA 伯格灰橡
④ 柜门:S9014-SM-EA 代尔夫特蓝
⑤ 柜体:S7010-SM-EA 托斯卡纳金
⑥ 柜体:S7011-M-PA 幻影黑




3

中式茶室展示区域


中式茶室设计的意义就是为满足人们需要宁静与放松的情感诉求。但传统中式茶室虽然恬淡悠然但过于古质,如何营造一个满足现代人需求的新中式茶室呢?

在这里设计师采用了大面积的阿拉斯加白作为主体花色,搭配大地色,显得纯净而整洁,黄铜色金属在灯光的搭配下,既古朴又内涵,一台小方桌,不论是自饮还是对酌,都显得妙趣横生,好不惬意。

华洲木业︱湖南浏阳战略合作商 240㎡ 展厅空间设计案例(图8)

Design and color
① 柜体/柜门:Z6025-M-PA 阿拉斯加白




4

设计区展示区域


华洲木业︱湖南浏阳战略合作商 240㎡ 展厅空间设计案例(图9)

Design and color
① 柜体/柜门:S9001-SM-EA 高级灰
② 柜体:S7009-SM-EA 纳维亚爵士白




华洲木业︱湖南浏阳战略合作商 240㎡ 展厅空间设计案例(图10)

Design and color
① 柜门:S9002-SM-SB 卡其
② 柜门:S7010-SM-EA 托斯卡纳金
③ 柜门:S7004-2-Z-WG 马尔默灰橡
④ 柜门:S7008-2-Z-SD 星云(浅)




华洲木业︱湖南浏阳战略合作商 240㎡ 展厅空间设计案例(图11)

Design and color
① 柜体/柜门:S9001-SM-EA 高级灰
② 柜体/柜门:S7006-2-Z-WE 斯图加橡木(浅)
③ 柜体:S7012-M-PA 法拉贝拉




华洲木业︱湖南浏阳战略合作商 240㎡ 展厅空间设计案例(图12)

Design and color
① 柜门:S9001-SM-EA 高级灰
② 柜体/柜门:S7006-2-Z-WE 斯图加橡木(浅)
③ 柜体:S7012-M-PA 法拉贝拉