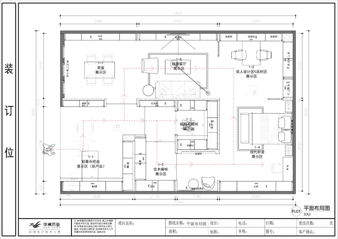
由于很多小伙伴反馈说,想要看小面积的展厅设计方案,本次合作商展厅案例分享,就为大家带来华洲陕西西安战略合作商95㎡的展厅建店设计,一起欣赏小面积展厅的设计呈现。

设计思路
DESIGN IDEAS
此次展厅的设计面积为95㎡,较小的面积如何实现功能与设计的完美结合,这就非常考验设计师对于空间布局的规划以及消费者内在需求的把控,从而打造具有舒适体验感的高颜值展厅。
设计师表示:小空间的设计也要系统而全面,还要更加讲究精准化的设计落地,将主题和内涵细致、直接的铺展开,可以帮助消费者迅速了解设计特点。
设计师将整体空间划分为产品展示区和情境空间展示区两大类,选材与花色品类精选当下潮流的产品系列;情景展示选取轻奢、现代、极简三大主流风格,对客厅、卧室、衣帽间等生活场景进行模块化演绎。
结合回字形的动线设计,既能清晰地区分每个空间风格,又能让消费者的观赏线路产生合理闭环,使其拥有丰富且直观的观赏体验。
情景空间展示
DISPLAY OF SCENE SPACE
轻奢客餐厅
客厅是家装设计的核心区域,考量到沙发等家具装饰会占用很大的空间,而电视墙的设计往往能决定客厅的风格基调,因而设计师着重展示电视背景墙及柜体设计。
轻奢风格是如今深受消费者喜爱的设计风格之一,设计师采用波尔多胡桃搭配烟灰,奠定了空间雅致的基调,木纹与素色的组合,真实而自然,色块的搭配分明而和谐,线条的设计也追求简约,营造了精致大气的客厅空间,彰显了不凡的生活品味。

Design and color
① 柜体:S8002-SM-WB 波尔多胡桃
② 门板+跳色:S7009-SM-EA 纳维亚爵士白
③ 门板:S9011-SM-EA 烟灰
现代卧室
卧室是让我们回归平静的地方,而舒适简单就成为了它重要的空间属性,能在每个夜晚裹挟着对新一天的期待轻松入眠。
现代风格追求时尚简约,设计师采用了云灰与斯图加橡木相搭配,营造了平稳而舒缓的自然意境,去除了多余的装饰,追求功能本身,而采用无主灯设计更营造了舒适温暖的空间氛围。

卧室中的衣柜采用设计功能层次分明,采用掩门柜、开放柜、抽屉相结合,充分的考虑了多样化的收纳需求,一板到顶更显简洁美观,均匀分隔更显整齐干净,而玻璃与金属元素的植入也凸显了时尚与精致,充满美感。

Design and color
① 墙板+门板:S9011-SM-EA 烟灰
② 墙板+柜体:S7006-1-Z-WE 斯图加橡木(深)
极简衣帽间
衣帽间的重要职能就是整齐收纳、方便寻找,给服饰一个专属于它的空间,收藏关于美好和时尚的秘密,还有每天焕然一新的自己。
衣帽间从来不是大空间的专属,它属于每一个追求时尚与美丽的个体,而设计师也完美的诠释了收纳全能的含义。开放式与掩门式收纳相结合,柜体的分割也考虑到不同衣物的收纳需求;加拿大枫木与米兰布纹相搭配,是自然的纯粹与文艺的细腻相碰撞,更凸显了时尚生活的艺术品味。

Design and color
① 柜体:Z6010-F16 加拿大枫木
② 抽面:S8006-Z-CA 米兰布纹
新中式茶室
茶室,一个可以静心、品茶的地方,讲究的是意境,这不是靠传统元素的堆砌,而是领悟其内涵,从而表达出的从容与自得。
设计师采用波尔多胡桃与纳维亚爵士白相搭配,木石结合更有自然意境,素雅的色彩也营造出质朴与悠然。柔和的灯光更显松弛,古朴的家具装饰也与氛围更加契合,整体空间有中式的韵味,也有现代的演绎,具有很强的突破性。

Design and color
① 柜体:S8002-SM-WB 波尔多胡桃
② 门板+跳色:S7009-SM-EA 纳维亚爵士白
新中式玄关
入户玄关是颜值与功能的结合,一方面是家装风格的目录,一方面也要满足日常生活中的需求。
设计师选用高级灰与波尔多胡桃相结合,在门板大面积灰色的衬托下,木纹的自然与细腻更为瞩目,凸显雅致的意境。玄关柜有掩门式的衣柜和鞋柜,也有留空的置鞋处,既显得大气简约,又能方便快速换取。

Design and color
① 柜体+抽面:S8002-SM-WB 波尔多胡桃
② 门板:S9001-SM-EA 高级灰
中国广东省广州市番禺区南村镇樟边村岗平3号
中国广东省韶关市始兴县沙水产业转移工业园
中国广东省韶关市始兴县沙水产业转移工业园
关注微信公众号
关注微信小程序
Copyright © 2020 - 2021 广州华坊洲木业有限公司
